Vörder Holzhaus VH70-156

 

VH70-156 / 27° Dachneigung
VH93-156 / 27° Dachneigung

 
   

Natürlich attraktiv!

Einer unserer beliebtesten Haustypen: Ein gelungener Kompromiss aus viel Platz und vernünftigem Preis.

Beachten Sie: Eine ähnliche Variante gibt es auch mit integriertem Carport. Klicken Sie hier



Typen und Daten
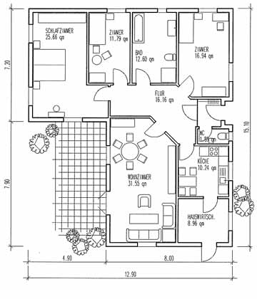
Typ VH70-156, bestehend aus 68 mm starken kerngetrennten Blockbohlen mit einer Wohnfläche von 135,8 qm
Typ VH93-156, bestehend aus 93 mm starken kerngetrennten Blockbohlen mit einer Wohnfläche von 134,5 qm


Fragen? Schreiben Sie uns einfach!
Kontaktformular

 

Vörder Holzhaus VH70-156 Außenansicht
 
Vörder Holzhaus VH70-156 Grundriss
Beispiel-Grundriss