Vörder Holzhaus VH70-150

 

VH70-150 / 27° Dachneigung + Carport
VH93-150 / 27° Dachneigung + Carport

 

 

 

Natürlich funktional!

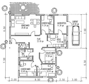
Neben geräumigen 130 Quadratmetern Wohnfläche bietet unser Haustyp VH70-150 + Carport / VH93-150 + Carport zusätzlich ein integriertes Carport.

Praktisch: Vom Carport gelangen Sie direkt ins Haus.



Typen und Daten
Typ VH70-150 +Carport, bestehend aus 68 mm starken kerngetrennten Blockbohlen mit einer Wohnfläche von 131,3 qm
Typ VH93-150 +Carport, bestehend aus 93 mm starken kerngetrennten Blockbohlen mit einer Wohnfläche von 130,1 qm


Weitere Informationen
Fotogalerie Außenansichten
Fotogalerie Innenansichten
Fotogalerie Details


Fragen? Schreiben Sie uns einfach!
Kontaktformular

 

Vörder Holzhaus VH70-150 mit Carport Ansicht
 
Vörder Holzhaus VH70-150 Grundriss
Beispiel-Grundriss