Vörder Holzhaus VH70-99

 

VH70-99 / 45° Dachneigung
VH93-99 / 45° Dachneigung

 
   

Natürlich viel Platz!

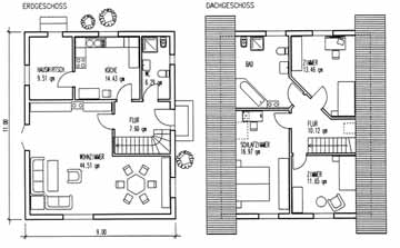
Wenn Ihr Holzhaus zweigeschossig sein soll, gehört unser Haustyp VH70-99 / VH93-99 wahrscheinlich zu Ihren Favoriten.

Wie bei fast allen unserer Häuser haben Sie die Wahl zwischen den robusten Blockbohlen mit 68mm oder starken 92mm.



Typen und Daten
Typ VH70-99 45°, bestehend aus 68 mm starken kerngetrennten Blockbohlen mit einer Wohnfläche von 146,4 qm
Typ VH93-99 45°, bestehend aus 93 mm starken kerngetrennten Blockbohlen mit einer Wohnfläche von 145,3 qm


Fragen? Schreiben Sie uns einfach!
Kontaktformular

 

Vörder Holzhaus VH70-99 Außenansicht