Vörder Holzhaus VH70-92

 

VH70-92 / 45° Dachneigung + Loggia + Erker
VH93-92 / 45° Dachneigung + Loggia + Erker

 
   

Ökologisch mit Holz bauen - Ihrer Familie zuliebe!

Denn für sie ist im Haustyp VH70-92 und VH93-92 mehr als genügend Platz. Und die anspruchsvolle Architektur wird auch hohen Ansprüchen gerecht.

Wie alle unsere Häuser ist es außerdem energiesparend und somit äußerst kostengünstig.



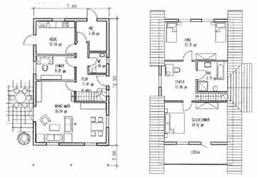
Typen und Daten
Typ VH70-92/45° +L+E, bestehend aus 68 mm starken kerngetrennten Blockbohlen mit einer Wohnfläche von 149,2 qm
Typ VH93-92/45° +L+E, bestehend aus 93 mm starken kerngetrennten Blockbohlen mit einer Wohnfläche von 148,3 qm


Weitere Informationen
Fotogalerie Außenansichten
Fotogalerie Innenansichten


Fragen? Schreiben Sie uns einfach!
Kontaktformular

 

Vörder Holzhaus VH70-92 + Loggia + Erker Außenansichten