Vörder Holzhaus VH70-92

 

VH70-92 / 45° Dachneigung
VH93-92 / 45° Dachneigung

 
   

Natürlich viel Platz!

Wenn Ihr Holzhaus zweigeschossig sein soll, gehört unser Haustyp VH70-92 / VH93-92 wahrscheinlich zu Ihren Favoriten.

Wie alle unsere Häuser ist es außerdem energiesparend und somit äußerst kostengünstig.



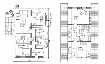
Typen und Daten
Typ VH70-92 45°, bestehend aus 68 mm starken kerngetrennten Blockbohlen mit einer Wohnfläche von 127,5 qm
Typ VH93-92 45°, bestehend aus 93 mm starken kerngetrennten Blockbohlen mit einer Wohnfläche von 126,6 qm


Weitere Informationen
Fotogalerie Innenansichten


Fragen? Schreiben Sie uns einfach!
Kontaktformular

 

Holzhaus VH70-92 Außenansichten