Vörder Holzhaus VH93-220

 

VH93-220 / 38° Dachneigung

 
   

Natürlich anspruchsvoll!

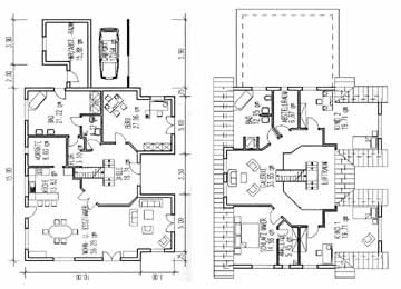
Mit seiner anspruchsvollen Architektur und der riesigen Wohnfläche von fast 250 Quadratmetern läßt unser Spitzen-Haustyp VH93-220 garantiert keine Ihrer Wünsche offen.

Wie alle unsere Häuser ist es trotz der Größe sehr energiesparend und somit äußerst kostengünstig.



Typen und Daten
Typ VH93-220, bestehend aus 93 mm starken kerngetrennten Blockbohlen mit einer Wohnfläche von 249,6 qm


Weitere Informationen
Fotogalerie Außenansichten


Fragen? Schreiben Sie uns einfach!
Kontaktformular

 

Vörder Holzhaus VH93-220 Außenansicht