Vörder Holzhaus VH70-178

 

VH70-178 / 27° Dachneigung
VH93-178 / 27° Dachneigung

 
   

Natürlich viel Platz!

Natürliche Bauweise, Langlebigkeit und hochwertige Ausführung ist uns äußerst wichtig - wenn Ihr Holzhaus dann noch soviel Freiraum bietet wie unser Haustyp VH70-178 / VH93-178 ist Wohlfühlen garantiert!

Wie bei fast allen unserer Häuser haben Sie die Wahl zwischen den robusten Blockbohlen mit 68mm oder starken 92mm.



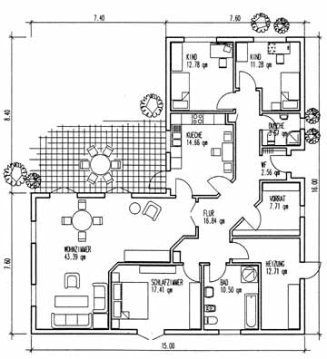
Typen und Daten
Typ VH70-178, bestehend aus 68 mm starken kerngetrennten Blockbohlen mit einer Wohnfläche von 154,9 qm
Typ VH93-178, bestehend aus 93 mm starken kerngetrennten Blockbohlen mit einer Wohnfläche von 153,5 qm



Weitere Informationen
Fotogalerie Außenansichten



Fragen? Schreiben Sie uns einfach!
Kontaktformular

 

Vörder Holzhaus VH70-178 Außenansicht
 
Vörder Holzhaus VH70-178 Grundriss
Beispiel-Grundriss