Vörder Holzhaus VH70-138

 

VH70-138 / 27° Dachneigung
VH93-138 / 27° Dachneigung

 
   

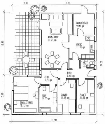
Natürliches Wohnen auf fast 120qm

Mit seinen fast 120 Quadratmetern Nutzfläche bietet unser Holzhaus VH70-138 / VH93-138 Platz für Ihre ganze Familie.

Wie bei fast allen unserer Häuser haben Sie die Wahl zwischen den robusten Blockbohlen mit 68mm oder starken 92mm.



Typen und Daten
Typ VH70-138, bestehend aus 68 mm starken kerngetrennten Blockbohlen mit einer Wohnfläche von 119,1 qm
Typ VH93-138, bestehend aus 93 mm starken kerngetrennten Blockbohlen mit einer Wohnfläche von 117,9 qm


Weitere Informationen
Fotogalerie Außenansichten
Fotogalerie Innenansichten


Fragen? Schreiben Sie uns einfach!
Kontaktformular

 

Holzhaus VH70-138 Außenansicht
 
Holzhaus VH70-138 Grundriss
Beispiel-Grundriss